Gidget Graham / Crown Point Commercial
This space is conveniently located in Henderson, consistently rated as one of the top cities in the U.S. to live and work. It is right near I-215 at Gibson Road and I-95/515 at Auto Show Drive.
Property Highlights
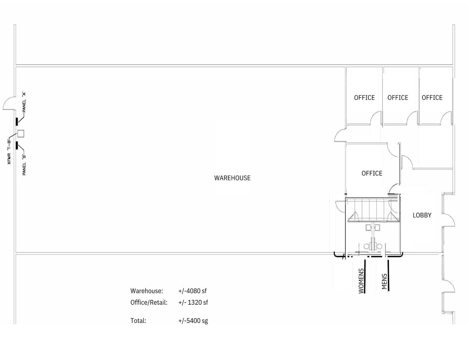
5,400 sq ft
$1.25 or $6,750
Rate
$0.25 or $1,347
CAM
Graham Team Commercial is proud to present an opportunity to LEASE Suite 108 at American Pacific Business Park located at 980 American Pacific Drive. This space is comprised of 5,400 sf of divisible property. Typical Divisions: ~4,080 sf ± 4,080 sf or ~1,320 sf Bay. This space is conveniently located in Henderson near I-215 at Gibson Road and I-95/515 at Auto Show Drive.
Building Highlights
-
Built-in 1999: Concrete Tilt Up
-
+/- 61,460 RSF
-
11 suites
-
Access to I-95 & I-215
-
Sprinkler: Wet Pipe
-
Add AMP available for distribution to suites
-
Warehouse Height: 18’ to 20’
-
Acreage: 3.51 ac
-
Zone: I.G. General Industrial
-
Parking 2.2 : 1,000
-
Use Permit in place allows for various uses
Located in Henderson, NV
Henderson is consistently rated as one of the top cities in the U.S. to live and work. This location has convenient access to the I-515 and I-215. Businesses and customers can reach most of the Valley quickly. It's also adjacent to the Henderson auto‐center, one of the largest auto centers. Touro University is also a neighboring property. There's mixed uses surrounding the community with Industrial Parks, Retail, Multi‐family units.









